Phone:

Phone: 905-689-0793

Fax:

Fax: 905-689-9216

Email:

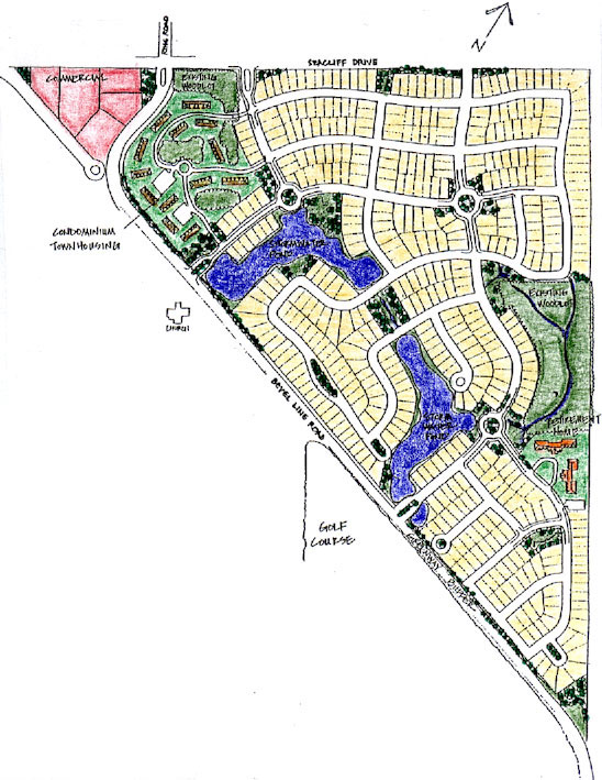
Bennie Farm Secondary Plan

Situated in Leamington, the Bennie Farm property posed some unique challenges given the presence of isolated, mature Carolinian woodlots and the proximity to the Lake Erie shoreline.  Through a combination of an elongated stormwater management facility (greenway) and open space park uses, the woodlot features were connected and buffered with compatible land uses.  Traffic calming measures were introduced in key locations to minimize impacts to wildlife movement.  Nature trails were proposed within the woodlots to provide residents with passive recreational opportunities.